비드프로 고객 상담
전화 :
031 628 7891
팩스 :
031 628 7895
평일 9AM ~ 6PM 토/일/휴일 휴무
 
입찰정보 > 입찰공고 현황 > 용역
1. 공고일반 ※ 회원가입 후 시그니처 입찰시스템을 활용해보세요!
공고번호 R25BK01158888-000 공고일시  2025/11/17 15:24
공고명 경성대학교 6호관(인문관) 복지매장 편의점 위탁운영 업체 선정
공고기관 경성대학교 수요기관 경성대학교
공고담당자 심영수(☎: 051-663-4132) 과업설명 제한여부
입찰방식 직접입찰 계약방법 일반경쟁
용역구분 국제입찰구분  
 
2. 입찰일시
입찰개시일시 2025/11/25 10:00 과업설명일시
공동협정서마감일시   PQ신청서 신청기한
참가신청 신청기한    
입찰(투찰)마감일시 2025/11/25 10:00 개찰(입찰)일시 2025/11/25 11:00
 
3. 입찰금액
기초금액
0 원
   
배정예산
10,000,000 원
   
추정가격
9,090,909 원
낙찰하한율
-
 
4. 입찰공고서 원문
 

 

 

1. 입찰에 부치는 사항  

입찰번호 

입찰건명  

입찰방법 

서류등록마감 

입찰일시 

제25-21호 

경성대학교 6호관(인문관) 편의점 위탁운영 업체 선정 

일반경쟁입찰 

(최고가입찰) 

11월 25일(화) 10:30 

총무팀 

(26호관 301호) 

11월 25일(화) 11:00 

회의실 

(26호관 302호) 

 

 

※ 보증금은 아래와 같고, 입찰가격은 연간 시설사용료에 대한 것임 

임대장소 

보증금액 

비고 

6호관 222호 

1,000만원 

보증금액 고정 

 

 

 ※ 입찰가격은 1년 임대료 총액(월임대료, 부가세포함 * 12개월)에 대한 것임 

 

2. 계약기간  

  가. 계약기간: 계약체결일로부터 3년 계약(계약만료 후 상호협의 하에 최대 2년까지 연장 가능) 

    ※ 계약만료 전 업체 평가를 통해 최대 2년까지 연장 가능 

 

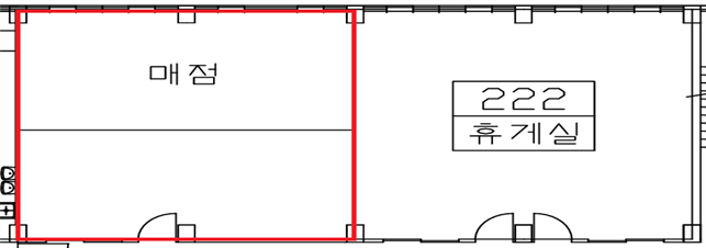
3. 현장위치  

  - 낙찰자와 협의하여 222호 내 매점 앞 공간까지 확장 가능(붙임 참고) 

6호관 222호(약 33.6m2) 

그림입니다. 

그림입니다. 

 

            

            ⓛ                            
             

            ② 

 

 

 

1. 기존 공간: ⓛ 

2. 확장 가능한 공간: ② 

 

 

4. 시설사용 

  가. 비용 부담 범위 

  

발주처 

 계약상대자 

편의점 장소 제공 

 - 6호관 222호 

○ 보증금 

○ 임대료(연 임대료, 부가세 포함) 

○ 관청 허가, 영업신고 등 일체의 행정절차 

○ 음식물쓰레기(생활폐기물 등) 처리비용 

○ 전기료, 수도료, 보험료 등 제세공과금 일체 

  ※ 가스 사용 불가 

○ 기타 운영에 수반되는 비용의 일체 

  

  나. 임대료 납부 방법 :  

     1) 낙찰자는 계약체결 시 보증금을 입금한 확인서 제출 

     2) 계약서를 작성하고, 임대료는 매년 3월 1일 기준으로 연 임대료를 일시불로 선납함 

 

  다. 기타조건 

    1) 낙찰자는 직영 또는 위탁 운영 방식으로 운영합니다.  

    2) 경성대학교 학생 및 교직원 현황 참고(2025. 4. 1.자 기준) 

     가) 재학생 12,568명 / 재적학생 16,486명(2025. 4. 1. 자) 

     나) 교원 969명(2025. 4. 1. 자) 

     다) 직원 234명(2025. 4. 1. 자) 

    3) 주류는 판매금지하고, 대학 편의점 수준의 상품가격을 유지하여야 합니다. 

    4) 영업시간(정규학기, 주말, 방학) 및 운영방식(유·무인)은 협의하여 조정할 수 있습니다. 

      ※ 6호관 건물 출입 통제시간은 22:00 ∼ 익일 07:00입니다.(학내 구성원은 출입 가능) 

    5) POS(판매시점통합관리)시스템을 통한 매출내역을 발주처에서 요구할 경우 제출하여야 합니다. 

    6) 낙찰자는 투자한 모든 시설 및 집기를 계약만료 후 7일 이내 원상 복구하여야 하며, 다음 입주자에게 어떠한 권리를 행사할 수 없습니다. 

 

5. 입찰참가자격   

  가. 국가를 당사자로 하는 계약에 관한 법률 시행령 제12조(경쟁입찰의 참가자격) 및 동법 시행규칙 제14조(입찰참가자격요건의 증명)에 의거한 자격을 갖춘 업체로서 동법 제27조 및 동법시행령 제76조에 의한 부정당업자의 입찰참가자격 제한을 받은 사실이 없는 사업자 

  나. 편의점 운영 경험이 공고일로부터 기산하여 3년 이상인 법인이거나, 그러한 법인과 가맹계약을 체결하여 운영 중인 사업자 혹은 그러한 법인과 가맹계약 체결 예정인 자 

 

6. 입찰제출서류 

  가. 입찰참가신청서 1부 

  나. 청렴계약이행서약서 1부. 

  다. 법인등기부등본 혹은 사업자등록증 사본 1부 

    ※ 가맹계약 체결 예정인 경우, 운영하고자 하는 대표자 본인의 신분증 사본으로 대체 가능 

  라. 국세 및 지방세 완납증 각 1부. 

  마. 입찰이행보증보험증권(가격입찰서 금액의 5%) 1부  

    ※ 경성대학교 사업자등록번호: 617-82-00347 

  바. 인감증명서 및 사용인감계 각 1부 

  사. 위임장 및 재직증명서(대리인 참석 시) 각 1부 

  아. 영업신고증 사본 1부 

  자. 국공립 및 사립 대학교 내 편의점 운영 실적증명서(해당 학교 확인) 1부 

  차. 입찰참가자격 ‘나’ 증빙 자료(가맹계약 체결하여 운영 중이거나 체결 예정인 자에 해당) 1부 

    1) 가맹계약을 체결하여 운영 중인 경우 해당 점포의 사업자등록증 혹은 가맹계약서(민감 사항은 마스킹 처리) 제출 

    2) 가맹계약 체결 예정인 경우, 해당 법인과 입찰참가자 간의 가맹계약서 혹은 가맹계약에 대한 확약을 증빙할 수 있는 서류를 제출 

  카. 개인정보 수집 및 활용 동의서 1부 

 

7. 입찰보증금 및 귀속 

  가. 입찰금액 5/100이상의 입찰보증보험증권을 입찰등록 시 제출 

  나. 낙찰자가 정당한 이유없이 10일 이내에 계약을 체결하지 아니할 때에는 입찰보증금은 우리대학에 귀속됩니다 

 

8. 입찰 및 낙찰자 결정 

  가. 낙찰자 결정방법: 최고가격응찰자 

    1) 공고의 입찰일시에 지정한 장소에 입찰 참가 등록을 완료한 업체에게 별제 제3호의 양식 배부, 투찰하고자 하는 금액을 입찰서에 작성하여 봉투에 봉인 후 제출 

    2) 예정가격 이상 최고 금액을 투찰한 업체가 낙찰자로 선정 

  나. 낙찰자는 위탁업체를 타인에게 위임 또는 양도할 수 없으며, 위반 시 계약위반으로 간주합니다. 

 

 

9. 입찰무효 

  가. 「국가를 당사자로 하는 계약에 관한 법률 시행령」 제39조(입찰서의 제출·접수 및 입찰의 무효) 및 동법시행규칙 제44조에 의거 입찰무효 조건에 해당되는 경우 

 

10. 기타사항 

  가. 입찰 설명회는 생략합니다. 

  나. 입찰 참여자는 모든 사항을 숙지하고 입찰에 참여한 것으로 간주합니다. 

  다. 가맹계약 체결 예정인 자가 낙찰된 경우, 계약 시 반드시 낙찰 받은 자가 대표자인 가맹점의 사업자등록증과 가맹계약서(민감 사항은 마스킹 처리)를 제출하여야합니다. 본 입찰의 계약은 제출한 사업자등록증의 사업자와 계약을 체결하며, 계약서와 가맹계약서를 제출하지 않는 경우, 해당 낙찰은 무효 처리되고 재공고합니다. 

  라. 자세한 사항은 총무팀(담당 심영수 051-663-4132), 후생복지팀(담당 김상민 051-663-6513)으로 문의하시기 바랍니다 

 

 

2025년 11월 17일 

 

경성대학교 재무관 

<붙임> 

6호관 222호 ② 공간 사진 

사각형입니다.그림입니다.사각형입니다. 

 

<별지제1호> 

입 찰 참 가 신 청 서 

   * 아래 사항중 해당되는 경우에만 기재하시기 바랍니다. 

처리기간 

즉    시 

 

 

 

상호또는 법인명칭 

 

법인등록번호 

 

주            소 

 

전 화  번 호 

 

대     표     자 

 

주민등록번호 

 

 

 

 

 

입  찰   공  고 

(지 명)   번 호 

    제                호 

입 찰  일 자 

        .    .    . 

입  찰   건  명 

 

 

 

 

 

 

납          부 

 ․ 보증금율:              %    

 ․ 보증액: 금                       원정(₩                  ) 

 ․ 보증금납부방법: 

납 부 면 제  및 지  급   확  약 

 ․ 사유: 

 ․ 본인은 낙찰후 계약미체결시 귀 대학교에 입찰금액에 해당하는 소정의  

  입찰보증금을 현금으로 납부할 것을 확약합니다. 

 

 

 

 

 

 

 

 

 

본 입찰에 관한 일체의 권한을 다음의 자에게 일임합니다. 

 

성명             주민등록번호 

 

본 입찰에 사용할 인감을 다음과 같이 신고합니다. 

    

               사용인감       ��         

본인은 위의 번호로 공고(지명통지)한 귀 대학교의 일반(제한․지명)경쟁입찰에 참가   하고자 정부에서 정한 공사(물품구매 ․ 기술용역)입찰유의서 및 입찰공고사항을 모두    승낙하고 별첨 서류를 첨부하여 입찰참가신청을 합니다. 

 

붙임서류: 1. 입찰참가자격을 증명하는 서류사본 1통 

          2. 인감신고서 1통 

          3. 기타 공고로써 정한 서류 

 

                                                           신청인:                 ��   

 

     경 성 대 학 교 귀 하 

세입세출외  현금출납공무원      성명:                                     (인) 

유가증권 취급공무원             성명:                                     (인) 

 

 

 

 

<별지제2호> 

청렴계약이행서약서 

 

  당사는 부패없는 투명한 기업경영과 공정한 행정이 사회발전과 국가 경쟁력에 중요한 관건이 됨을 깊이 인식하며, 국제적으로도 OECD뇌물방지 협약이 발효되고 부패기업 및 국가에 대한 제재가 강화되는 추세에 맞추어 청렴계약제 시행 취지에 적극 호응하여 경성대학교에서 시행하는 입찰에 참여함에 있어 당사 임직원과 대리인 

 

1. 입찰가격의 유지나 특정인의 낙찰을 위한 담합을 하거나 다른 업체와 협정, 결의, 협의하여 입찰의 자유경쟁을 부당하게 저해하는 일체의 불공정한 행위를 하지 않겠습니다.
이를 위반하여 경쟁입찰에 있어서 특정인의 낙찰을 위하여 담합을 주도한 것이 사실로 들어날 경우 경성대학교가 발주하는 입찰에 입찰참가자격제한 처분을 받는 날부터 2년동안 참여하지 않겠으며, 

 

   경쟁입찰에 있어서 입찰자간에 서로 상의하여 미리 입찰가격을 협정하거나 특정인의 낙찰을 위하여 담합을 한 사실이 드러날 경우 경성대학교가 발주하는 입찰에 입찰참가자격제한 처분을 받은 날로부터 1년동안 참여하지 않고 위와 같이 담합 등 불공정행위를 한 사실이 드러날 경우 독점규제 및 공정거래에 관한법률에 따라 공정거래위원회에 발주관서가 고발하여 과징금 등을 부과하도록 하는데 이의를 제기하지 않겠습니다. 

 

2. 입찰, 계약체결 및 계약이행 과정에서 관계담당자에게 직•간접적으로 금품•향응 등의 뇌물이나 부당한 이익을 제공하지 않겠습니다. 이를 위반하여 입찰, 계약체결 또는 계약이행과 관련하여 담당자에게 뇌물을 제공함으로써 입찰에 유리하게 되어 계약이 체결되었거나 시공중 편의를 받아 부실하게 시공한 사실이 들어날 경우 경성대학교가 발주하는 입찰에 입찰참가자격제한 처분을 받은 날로부터 2년동안 참여하지 않겠으며 입찰 및 계약조건이 입찰자 및 낙찰자에게 유리하게 되도록 하거나, 계약목적물의 이행을 부실하게 할 목적으로 관계담당자에게 뇌물을 제공한 사실이 들어날 경우에는 경성대학교에서 발주하는 입찰에 입찰참가자격제한 처분을 받는 날로부터 1년동안 참가하지 않고 입찰, 계약체결 및 계약이행과 관련하여 관계담당자에게 뇌물을 제공한 사실이 들어날 경우에는 경성대학교가 발주하는 입찰에  입찰참가자격제한 처분을 받은 날로부터 6개월 동안 참가하지 않겠습니다. 

 

 

3. 입찰, 계약체결 및 계약이행과 관련하여 관계담당자에게 뇌물을 제공한 사실이 드러날 경우에는 계약체결 이전의 경우에는 낙찰자 결정 취소, 공사착공 전에는 계약취소, 공사착공 이후에는 발주처에서 전체 또는 일부계약을 해지하여도 감수하고 민•형사상 이의를 제기하지 않겠습니다. 

 

4. 회사 임•직원이 관계 담당자에게 뇌물을 제공하거나 담함 등 불공정행위를 하지 않도록 하는 회사윤리강령과 내부비리 제보자에 대해서도 일체의 불이익처분을 하지 않는 사규를 제정토록 노력하겠습니다. 

 

5. 본건 입찰, 계약체결, 준공과 관련하여 경성대학교에서 시행하는 청렴계약 옴부즈만이 요구하는 자료제출, 서류열람, 현장확인, 등 활동에 적극 협조하겠습니다. 

 

위 청렴계약이행서약은 상호신뢰를 바탕으로 한 약속으로서 반드시 지킬것이며, 낙찰자로 결정될시 본 서약 내용을 그대로 계약특수조건으로 계약하여 이행하고, 입찰참가자격제한, 계약해지 등 경성대학교와 관련하여 당사가 경성대학교를 상대로 손해배상을 청구하거나 당사를 배제하는 입찰에 관하여 민•형사상 이의를 제기하지 않을 것을 서약합니다. 

 

6. 본건 관련 하도급계약체결 및 이행에 있어서 하도급자로부터 금품을 수수하거나 부당 또는 불공정한 행위를 하지 않겠습니다. 

 

 

2025.       .           . 

 

 

 

서약자 :               회사     대표            (인) 

<별지제3호> 

입     찰     서 

입찰내용 

공 고 번 호 

제             호 

입 찰 일 자 

.    .    . 

건       명 

 

금       액 

(부가세포함) 

금                         원정(₩                     ) 

※ 금액은 연임대료 총액기준으로 작성 

※ 입찰 보증금의 한도액을 초과한 금액은 무효이며, 한글과 아라비아 숫자로      

   표기한 금액이 다를 경우, 한글로 표기한 입찰금액을 기준으로 함 

준공(납품)년월일 

 

입찰자 

상호또는법인명칭 

 

법인등록번호 

 

주    소 

 

전 화 번 호 

 

대 표 자 

 

주민등록번호 앞 6자리 

 

 

본인은 경성대학교 입찰공고, 제안요청서 등에 따라 내용을 충분히 숙지한 후 입찰에 참가하여 응찰하며 그 결과 및 경성대학교의 결정에 따를 것을 약속합니다. 또한 이 입찰이 귀교에 의하여 수락되면 계약체결 통보일로부터 5일 이내에 계약체결하며  입찰공고, 제안요청서, 제안서 등에 따라 위의 입찰금액으로 기한 내 충실히 이행할 것을 확약합니다. 입찰, 계약 및 계약이행 등에 있어 상호 이견이 발생할 경우 학교의 기준, 진행, 판단 및 유권해석에 따를 것을 약속하며 입찰서를 제출합니다. 

 

 

입 찰 자 :                 

 

 

 

경 성 대 학 교 귀 하 

 

<별지제4호> 

실 적 증 명 원 

 

 

 

 

 

 

업 체 명 

(상 호) 

 

대 표 자 

 

주영업 

소재지 

 

연 락 처 

 

사업자 

등록번호 

 

제 출 처 

 

증명서 

용도 

  

 

 

 

 

 

 

계 약 명 

 

주요활동 

내    용 

                                              

                                       (식당업종 포함 기술)   

계약번호 

계약기간 

계약금액 

수행실적 

비율 

실적 

 

 

 

 

 

 

 

 

 

 

 

 

[계약자] 

위 사실을 증명함. 

 

 

2025년    월    일 

기 관 명 

(인) 

주    소 

 

발급부서 

 

연 락 처 

 

담 당 자 

 

긴급연락처 

 

각 항목요건을 갖출 경우 발행기관별 양식도 가능함 

실적증명원 제출이 불가한 경우, 해당 실적에 대한 계약서 및 전자세금계산서 제출 

 

<별지제5호> 

 

개인정보 수집 및 활용 동의서 

 

- 입찰참가신청자와 위임장에 의한 권한수임자는 본 개인정보 수집 및 활용 동의서를 각각
1부씩 제출하여야 함.  

  (단, 입찰참가신청자와 권한수임자가 동일인일 경우에는 1부만 제출 바람) 

동의자 

(입찰참가 

신청자 및 권한수임자) 

기  관  명 

 

부  서  명 

 

휴대폰번호 

 

성       명 

 

개인정보의 수집 및 활용 

  ◦ 개인정보 수집 및 활용 목적 : 본교에서 진행하는 경쟁입찰 서류접수 및 입찰
관련 권한 수임 확인   

  ◦ 수집하는 개인정보 항목  

     - 입찰참가 신청자 : 성명, 소속(부서), 휴대폰번호  

     - 입찰권한 수임자 : 성명, 소속(부서), 주민등록번호 앞 6자리, 주소, 휴대폰번호  

  ◦ 개인정보의 보유 및 활용기간 

     - 개인정보 보유기간 : 본 동의서 접수일로부터 최대 2년  

     - 개인정보 활용기간 : 본 동의서 접수일로부터 최대 3주 

     - 동의 거부 권리 안내 

        : 동의인은 본 개인정보 수집에 대한 동의를 거부할 수 있음. 

         (단, 이 경우 본교에서 진행하는 입찰에 참여할 수 없거나, 입찰에 관한 권한을 수임 받을 수 없음) 

 

 

 본인은 개인정보 처리에 관하여 고지 받았으며 이를 이해하고 동의합니다.    

 

2025년   월   일 

 

 

                                            동의인                 (서명)